-Verkauft- Großzügiges Einfamilienhaus in idyllischer Randlage Deggendorfs
Obkejt ID: IT20242550
Lage
Das Objekt befindet sich in idyllischer Randlage Deggendorfs, direkt am Deggendorfer Stauweiher. Trotz der ruhigen Umgebung ist die Versorgung im Alltag bestens gesichert: Innerhalb von 2 bis 10 Autominuten erreichen Sie Supermärkte, ein Fitnessstudio, das Donau-Isar-Klinikum, Restaurants, Tankstellen, Bars, Bekleidungsgeschäfte, einen Elektrofachmarkt sowie das Autobahnkreuz A3/A92 – alles, was man für ein komfortables Leben braucht.
Auch für Familien hat Deggendorf einiges zu bieten: Vor Ort finden Sie ein breit gefächertes Bildungsangebot – von Grund-, Mittel- und Förderschulen über zwei Gymnasien, eine Real- und Wirtschaftsschule bis hin zu Berufs- und Fachhochschulen. So sind alle Bildungswege direkt vor Ort abgedeckt.
Doch nicht nur in Sachen Bildung überzeugt Deggendorf: Auch sportlich kommen Groß und Klein auf ihre Kosten. Ob Judo, Tennis, Turnen, Wassersport, Radfahren oder Golf – die Auswahl an Freizeitmöglichkeiten ist vielfältig und abwechslungsreich.
Zudem punktet Deggendorf durch seine verkehrsgünstige Lage. München (ca. 145 km), Passau (ca. 52 km) und Regensburg (ca. 73 km) sind schnell und bequem erreichbar – ideal für Berufspendler und Ausflüge gleichermaßen.
Eckdaten des Objekts:
Baujahr: 1982
Denkmalschutz: nein
Grundstücksfläche: 605 m²
Wohnfläche: 170m²
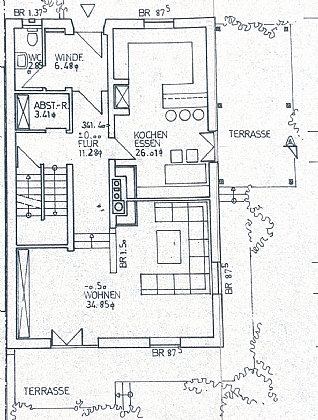
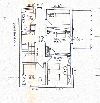
Aufteilung: siehe Grundriss
Zimmer: 5
Garagenstellplätze: 2
Terrasse: ja
Keller: vollunterkellert
Holzofen: ja
Baujahr laut Energieausweis: 1982
Energieausweis: Verbrauchsausweis
Energieeffizienzklasse: D
Endenergieverbrauch: 116,33 kWh/(m²*a)
Wesentlicher Energieträger: Erdgas, Stückholz
Käuferprovision: 3,57 % des Kaufpreises inkl. gesetzl. MwSt.
Bezugsfertig: sofort
Wir freuen uns auf Ihre Anfrage! Diese können Sie direkt über unser Kontaktformular stellen oder Sie rufen uns einfach unter 08671/958 28 25 an. Das Exposé zu diesem Objekt erhalten Sie von uns im Anschluss per Mail oder bei Ihrer Besichtigung.
Ihr Immo-Trio Team















